We offer :
- Rectangular external lids 454X734
- Rectangular external lids 455X745
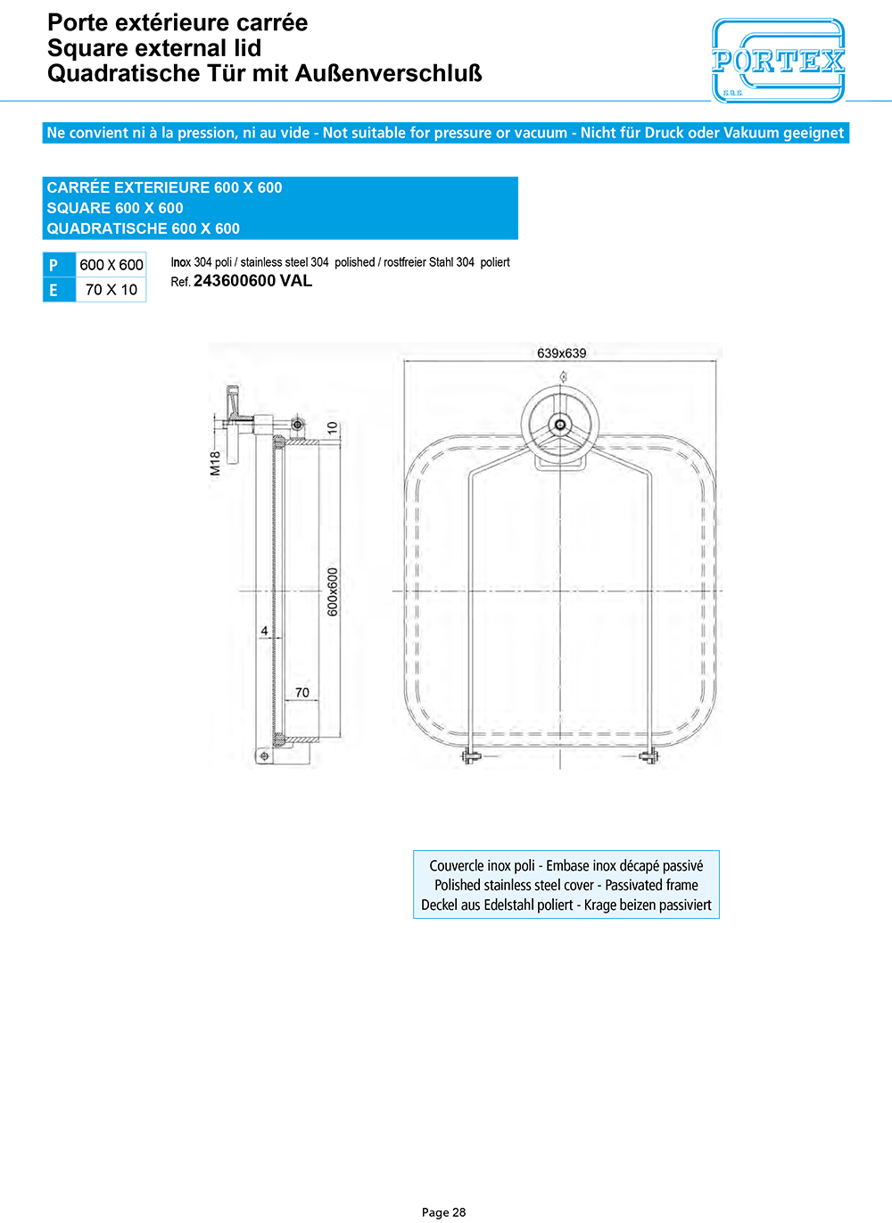
- Square external lid 600X600
- Rectangular external lids 1000X600
- Rectangular external lids 800X500
- Square external lid 600X600 and 750X750
- Rectangular external lids 630X830 and 780X980






